Lotto commerciale CATEGORIA CAT. D/7 mq 4.700

Lotto commerciale CATEGORIA CAT. D/7 mq 4.700

In vendita
Capannone
Limbiate
999.000 €
Descrizione
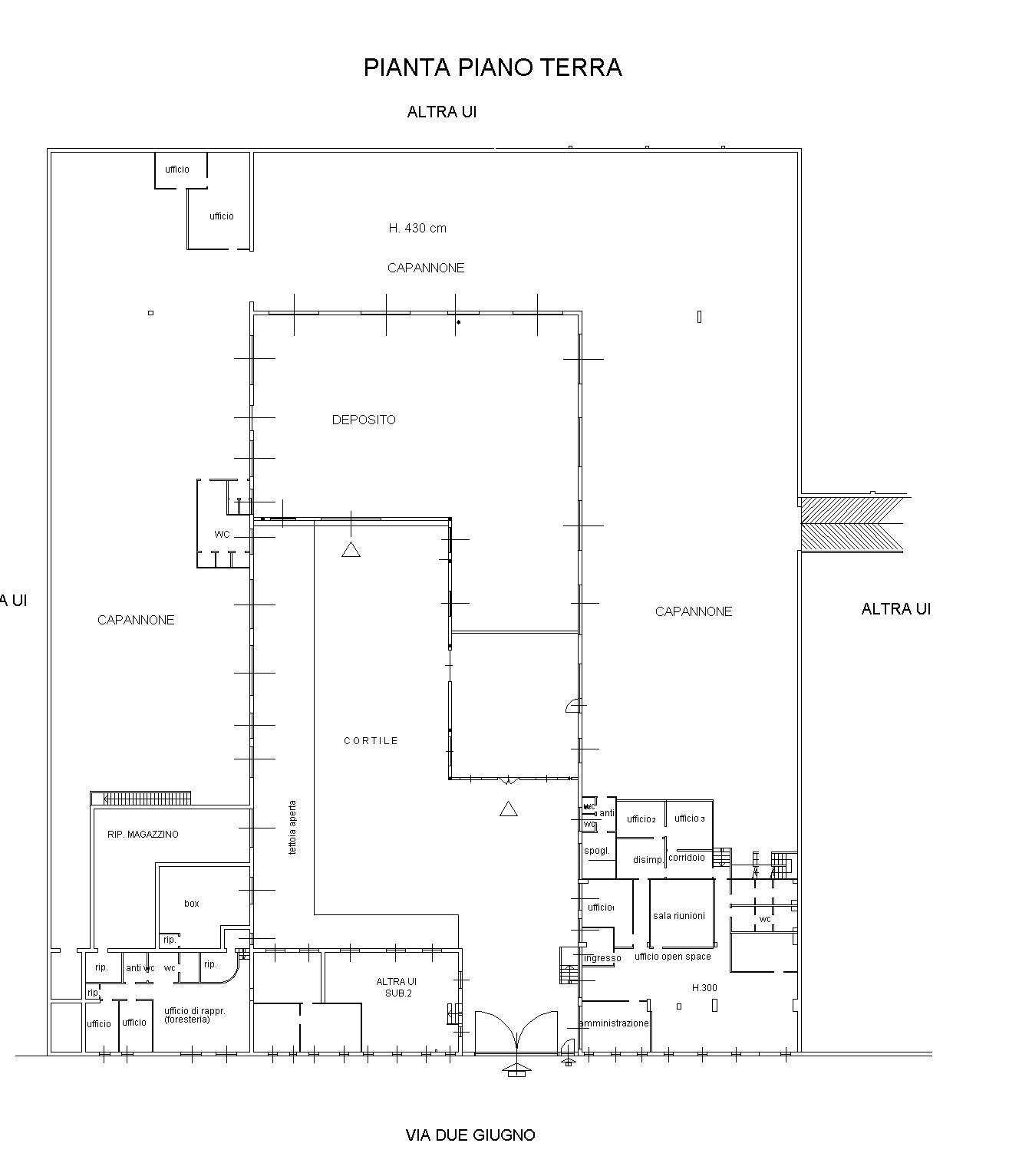
Limbiate, zona industriale, comoda con gli ingressi delle dalle principali vie di comunicazione, proponiamo complesso industriale, CATEGORIA . D/7 della superficie coperta complessiva di mq. 4750,00 costituita dai seguenti immobili: capannoni produttivi di mq. 2.300,00 con altezza interna sotto trave di mt. 4,3, deposito mq. 600, uffici/magazzini per mq. 700,00, appartamento custode e relative pertinenze per mq. 200,00, area scoperta di mq. 1000,00
Il fabbricato richiede opere di ristrutturazione ma la richiesta economica risulta particolarmente interessante.
Possibilità di annettere superfici produttive attigue, facenti parte dello stesso compendio immobiliare, fino alla metratura complessiva di mq. 11.000,00.
In nostri funzionari sono a disposizione della gentile clientela per ulteriori informazioni per visitare gli immobili.
Caratteristiche principali
Codice:
V001615
Città:
Limbiate
Categoria:
Capannone
Locali:
15
Mq:
4700
Classe energetica:
In fase di valutazione
Mappa
Via , Due Giugno - Limbiate (MB)
Video
Cookie preference