Barlassina, laboratorio mq. 350

Barlassina, laboratorio mq. 350

In affitto
Laboratorio
Barlassina
1.550 €
Descrizione
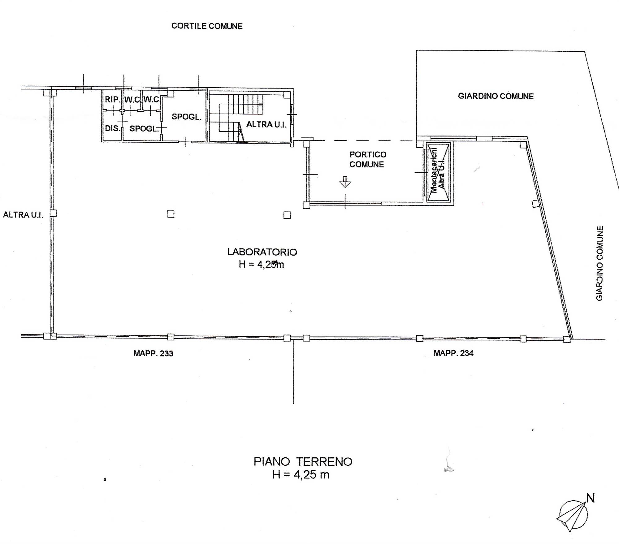
Barlassina - affittasi laboratorio dalle metratura di c.a. 350 mq.
Altezza interna di 4,25 m
Ingresso indipendente.
Minime spese comuni.
Solo referenziati.

Se hai un appartamento da vendere contattaci per una valutazione gratuita e senza impegno.
La presente scheda non costituisce forma di contratto, le informazione contenute sono da ritenersi del tutto indicative e non potranno essere utilizzate come parte integrante di un eventuale contratto di vendita o locazione della proprietà.
Caratteristiche principali
Codice:
A000210
Città:
Barlassina
Categoria:
Laboratorio
Locali:
1
Bagni:
1
Mq:
350
Anno:
1995
Classe energetica:
In fase di valutazione
Stato Immobile:
Ottimo
Grado:
Medio
Acqua Calda:
Autonoma
Pavim. Bagno:
Ceramica
Pavimento:
Cemento
Cauzione:
Fidejussione
Tipo Contratto:
6+6 Anni
Mappa
Via Segantini, 29 - Barlassina (MB)
Cookie preference