attico con 130 mq terrazzi e box doppio.

attico con 130 mq terrazzi e box doppio.

In vendita
Attico
Cesano Maderno
495.000 €
Descrizione
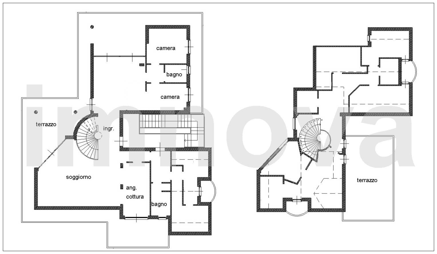
In zona comoda con il centro, proponiamo splendido ATTICO, unico nel suo genere, in palazzina di sole 4 unità immobiliari progettato con l'idea per una famiglia che ricerca ampi spazi da vivere. La soluzione internamente è stata rifinita con materiali di pregio, porgendo attenzione al dettaglio, abbassamenti e luci, che creano eleganti atmosfere. Quasi tutti gli ambienti si affacciano su spazi esterni godibili per lunghi periodi dell'anno: annesso alla cucina troviamo un terrazzo con zona barbecue, dal soggiorno accediamo ad una zona relax che collega all'altra ala dell'appartamento e nella parte superiore area solarium. E' l'unico immobile del piano, garantendo maggiore luminosità naturale, migliore ventilazione e un clima interno più confortevole, e grazie al doppio ingresso si può ricavare un appartamento attiguo di servizio o creare uno studio indipendente. Il box doppio in larghezza incluso.

Seguici su:
Instagram: Imnova.seveso
Facebook: Imnova Seveso Imnova
Caratteristiche principali
Codice:
V000348
Città:
Cesano Maderno
Categoria:
Attico
Spese condominiali:
1.200 € / anno
Locali:
6
Camere:
4
Bagni:
4
Mq:
225
Box:
2
Mq Box:
24
Balconi:
2
Mq Balcone:
6
Terrazzi:
2
mq Terrazzo:
125
Piano:
1
Anno:
2001
Classe energetica:
D
155,27
Stato Immobile:
Ottimo
Grado:
Signorile
Orientamento:
Nord Ovest Sud Est
Lati Liberi:
4
Arredi:
Possibilità
Tipo Soggiorno:
Soggiorno
Tipo Cucina:
Abitabile
Riscaldamento:
Autonomo
Tipo Riscaldam.:
Caldaia a Condensazione
Tipo Impianto:
Pavimento
Infissi:
Legno Doppio Vetro
Serramenti:
Ottimo
Accessori
Antifurto
Aria Condizionata
Camino
Cancello Elettrico
Doppi Vetri
Porta Blindata
Ripostiglio
Mappa
via Boito, 1 - Cesano Maderno (MB)
Video
Cookie preference