Ampia Villa Singola con Giardino e Box Doppio

Ampia Villa Singola con Giardino e Box Doppio

In vendita
Villa
Seveso (Altopiano)
450.000 €
Descrizione
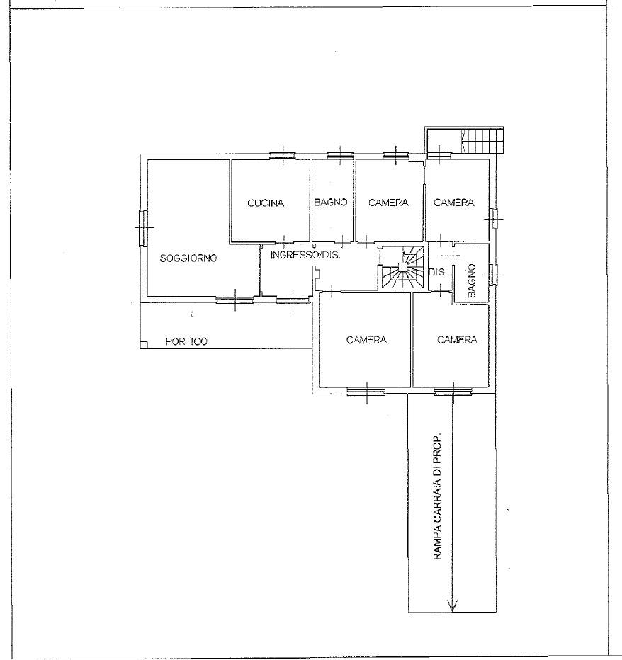
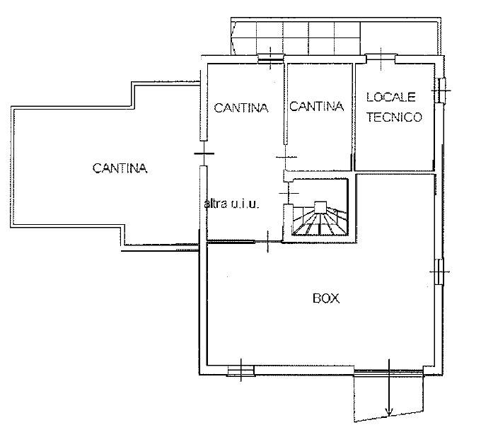
ALTOPIANO. In zona residenziale e tranquilla, proponiamo villa singola su un unico e comodo livello abitativo con giardino sui quattro lati. La soluzione internamente è composta da un 5 locali con cucina abitabile e doppi servizi (oggi adibita a bifamiliare), oltre al piano primo dove troviamo un locale hobby con terrazzo annesso, ideale per smart working o relax. Il piano interrato, collegato tramite scala interna, è suddiviso da vari locali ad uso cantina e box di 40 mq. Esternamente l'immobile si presenta in ottimo stato di conservazione, gli interni invece sono da personalizzare. Classe energetica in fase di rilascio.
Caratteristiche principali
Codice:
V000359
Città:
Seveso (Altopiano)
Categoria:
Villa
Locali:
6
Camere:
4
Bagni:
2
Mq:
180
Box:
1
Mq Box:
40
Mq Giardino:
650
Terrazzi:
1
mq Terrazzo:
22
Piano:
Terra
Anno:
1980
Classe energetica:
In fase di valutazione
Stato Immobile:
Da Ristrutturare
Grado:
Signorile
Lati Liberi:
4
Giardino:
Privato
Arredi:
Possibilità
Tipo Soggiorno:
Salone
Tipo Cucina:
Abitabile
Riscaldamento:
Autonomo
Tipo Riscaldam.:
Caldaia
Tipo Impianto:
Radiatori
Fonte Energetica:
Gas
Acqua Calda:
Autonoma
Raffrescamento:
No
Infissi:
Legno Doppio Vetro
Serramenti:
Mediocre
Persiana:
Persiana Legno
Pavim. Giorno:
Graniglia
Pavim. Notte:
Parquet
Pavim. Cucina:
Graniglia
Pavim. Bagno:
Ceramica
Accesso Disabili:
Nessuna Barriera
Accesso interno disabili:
Pieno accesso
Isolamento termico:
Nessuno
Isolamento acustico:
Nessuno
Accessori
Bagno Handicap
Camino
Cancello Elettrico
Doppi Vetri
Lavanderia
Porta Blindata
Ripostiglio
Tavolini Esterni
Mappa
Via Piemonte, 16 - Seveso (MB)
Cookie preference