Quattro locali con taverna e giardino

Quattro locali con taverna e giardino

In vendita
4 o più locali
Cesano Maderno
320.000 €
Descrizione
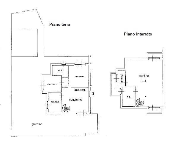
Cesano Maderno, zona Sacra Famiglia, in recente contesto signorile proponiamo splendido quadrilocale con ampio giardino privato e taverna.
La soluzione proposta si trova all'interno di una piccola palazzina rifinita ad intonaco e mattoni a vista, vicino ai principali servizi e comoda per raggiungere i collegamenti stradali.
L'appartamento si compone di ingresso su soggiorno con cucina a vista, cameretta/studio, disimpegno, camera matrimoniale, cameretta e bagno. Il giardino circonda i tre lati dell' abitazione, ideale per trascorrere momenti di relax con amici e parenti. La scala interna collega dal soggiorno la grande taverna di circa 70 mq, spazio multifunzionale comodo ed accogliente con bagno e lavanderia. A completare la soluzione due posti auto coperti privati e collegati direttamente al giardino.

Se hai un appartamento da vendere contattaci per una valutazione gratuita e senza impegno.
La presente scheda non costituisce forma di contratto, le informazione contenute sono da ritenersi del tutto indicative e non potranno essere utilizzate come parte integrante di un eventuale contratto di vendita o locazione della proprietà.
Caratteristiche principali
Codice:
V001841
Città:
Cesano Maderno
Categoria:
4 o più locali
Locali:
4
Camere:
3
Bagni:
3
Mq:
110
Posti auto:
2
Mq Giardino:
150
Piano:
Terra
Anno:
2006
Classe energetica:
E
212,84
Stato Immobile:
Ottimo
Grado:
Signorile
Panorama:
Vista Giardino
Orientamento:
Nord Est Sud
Lati Liberi:
3
Giardino:
Privato
Arredi:
Non Arredato
Tipo Soggiorno:
Soggiorno
Tipo Cucina:
A Vista
Riscaldamento:
Autonomo
Tipo Riscaldam.:
Caldaia
Tipo Impianto:
Radiatori
Fonte Energetica:
Metano
Acqua Calda:
Autonoma
Raffrescamento:
Split
Infissi:
Legno Doppio Vetro
Serramenti:
Ottimo
Persiana:
Tapparella PVC
Pavim. Giorno:
Gres Porcellanato
Pavim. Notte:
Parquet
Pavim. Cucina:
Gres Porcellanato
Pavim. Bagno:
Ceramica
Accesso Disabili:
Nessuna Barriera
Accesso interno disabili:
Pieno accesso
Accessori
Aria Condizionata
Ascensore
Cancello Elettrico
Doppi Vetri
Porta Blindata
Video Citofono
Mappa
Via Battisti, 33 - Cesano Maderno (MB)
Cookie preference