Ampia soluzione indipendente libera subito

Ampia soluzione indipendente libera subito

In vendita
Casa singola
Cesano Maderno
295.000 €
Descrizione
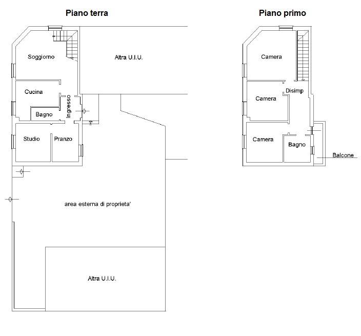
Cesano Maderno, zona Binzago, in posizione tranquilla e allo stesso tempo comoda con i servizi primari, proponiamo ampia casa indipendente di cinque locali su due livelli abitativi di circa 160 mq.
Il piano terra è composto da soggiorno con camino, cucina abitabile, bagno e due locali da adibire secondo le proprie esigenze. Tramite comoda scala lineare si accede al piano superiore dove si sviluppa la zona notte con tre spaziose camere da letto e il bagno.
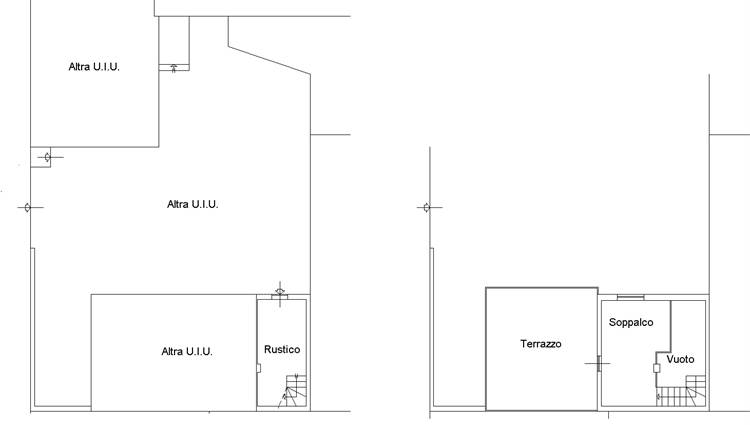
La soluzione propone anche un locale hobby/ depandance situato di fianco ai due box auto di proprietà ( uno dei quali doppio) composto da un comodo spazio al piano terra con impianto carico/ scarico acqua e soppalco collegato con scala in muratura che da accesso al lastrico solare del box, spazio ideale per godersi il tempo libero.
La proprietà dispone di ampio spazio esterno pavimentato oltre due porzioni a giardino.
L’ immobile è libero da subito e si presta ad essere personalizzato a seconda dei propri gusti ed esigenze.
Classe energetica in fase di rilascio.

Se hai un appartamento da vendere contattaci per una valutazione gratuita e senza impegno.
La presente scheda non costituisce forma di contratto, le informazione contenute sono da ritenersi del tutto indicative e non potranno essere utilizzate come parte integrante di un eventuale contratto di vendita o locazione della proprietà.
Caratteristiche principali
Codice:
V001846
Città:
Cesano Maderno
Categoria:
Casa singola
Locali:
5
Camere:
4
Bagni:
2
Mq:
180
Box:
2
Mq Box:
35
Mq Giardino:
160
Terrazzi:
1
Piano:
Terra
Anno:
1967
Classe energetica:
In fase di valutazione
Stato Immobile:
Da Ristrutturare
Grado:
Medio
Panorama:
Vista Aperta
Lati Liberi:
3
Giardino:
Privato
Arredi:
Non Arredato
Tipo Soggiorno:
Salone
Tipo Cucina:
Abitabile
Riscaldamento:
Autonomo
Tipo Riscaldam.:
Caldaia
Tipo Impianto:
Radiatori
Fonte Energetica:
Metano
Acqua Calda:
Autonoma
Infissi:
Legno
Serramenti:
Da Sostituire
Persiana:
Tapparella Legno
Pavim. Giorno:
Ceramica
Pavim. Notte:
Marmette
Pavim. Cucina:
Ceramica
Pavim. Bagno:
Ceramica
Accesso interno disabili:
Pieno accesso
Accessori
Aria Condizionata
Camino
Mappa
Via Zara, 5 - Cesano Maderno (MB)
Cookie preference